综合布线系统是酒店弱电系统的信息通道,是整个酒店智能化系统的信号交互神经网络,它与各个系统的不同设备相结合实现不同的智能化功能。建立一套先进的结构化布线系统,可以增加酒店客户的满意度,提升酒店酒店的形象,综合布线系统应满足以下三个方面要求:
建筑功能综合性:现代酒店涵盖了客房、餐饮、会务、办公、商业、娱乐等多种功能,综合布线系统在各个功能中扮演了不同的服务角色;
多系统的综合型:除了涵盖传统的局域网络及电话外,酒店综合布线系统更可以涵盖酒店日常工作中的有线电视视频点播、安全防范、内部对讲联络、无线上网覆盖、背景音乐等各个系统;
多传输格式、协议综合性:在线缆中传输的信号不仅有语音、数据、图像、音频、视频,更包含了银行ATM协议、客房管理设备以及智能楼宇设备等专用网络协议的传输。
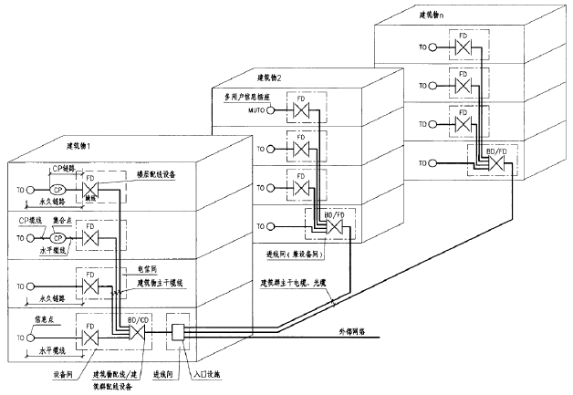
酒店一般由独栋或多栋建筑组成,属于建筑物和建筑群,它的综合布线系统设计需要遵循《综合布线系统设计规范GB50311》中所要求的7大组成部分。包括:工作区、配线子系统、干线子系统、建筑群干线子系统、进线间、设备间、管理。网络拓扑采用星型网络结构。本方案充分考虑了高度的可靠性,高速率传输特性,灵活性及可扩充性。
在近年综合布线产品的演变中,Car.5e非屏蔽以及屏蔽应用一直在下降,Cat.6非屏蔽以及屏蔽的是目前主流应用产品,万兆的Cat.6A、Cat.8应用处于上升阶段。对于酒店推荐的产品等级如下:
三星(含)以下酒店、商务酒店
这些等级的酒店其智能化系统的设计应以满足应用、适当超前为目标,推荐选择使用支持千兆以太网的Cat.6非屏蔽布线产品。
四星(含)以上的高端酒店
高端酒店的建设往往是一个地区的形象工程、标志性建筑。高速信息传输平台有利于提升酒店服务水平,配线子系统的基础设应在保证可以传输千兆以太网的基础上,尽可能选用可以传输万兆以太网的Cat.6A等级。
由于酒店属于人流密集的地方,配线子系统宜采用阻燃低烟无卤双绞线或光缆,阻燃低烟无卤缆线在遇火时除了能在一程度上阻止火焰蔓络外,最主要的原因是其燃烧的产物只有水和二氧化碳,没有剌性的有毒气体产生,不会造成身陷火中的人们中毒窒息,给更多的人逃生机会。
