室内分布系统是一种用于改善建筑物内部无线通信覆盖的质量和范围的系统。它主要用于增强移动通信信号(如2G、3G、4G、5G)、Wi-Fi信号以及其他无线服务,确保用户在建筑内部任何位置都能获得稳定的信号连接。
以下为一套基本的室内分布系统解决方案:
一、业务的需求分析与规划
环境调研:评估建筑物的结构、材料(如混凝土、玻璃等对信号的阻挡程度)、面积、层数以及预期用户密度。
业务需求:明确需要支持的通信技术标准(如LTE、5G NR、Wi-Fi 6等),预计的数据流量需求,以及特殊区域(如会议室、公共区域)的覆盖要求。
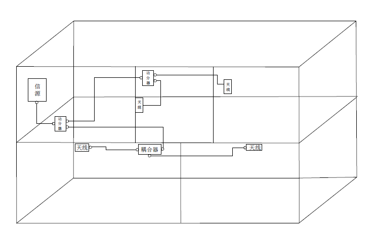
二、系统设计
网络架构选择:根据需求选择合适的架构,如分布式天线系统(DAS)、小基站(Small Cell)、Wi-Fi接入点(AP)或它们的组合。
器件与设备选型:包括信源、合路器、功分器、耦合器、天线。
线缆敷设路由的规划:确定同轴电缆的走向,考虑美观与实用性。
三、实施安装
基础设施准备:包括线缆铺设、机房建设或改造、电源与接地系统的布置。
设备安装与调试:按照设计方案安装所有组件,进行初步的信号测试与调整,确保各部件正常工作。
系统集成:将室内分布系统与外部宏蜂窝网络或核心网络对接,实现信号源的接入。
四、测试与优化
覆盖测试:使用专业工具进行场强测试,确保每个区域达到预定的信号强度和质量标准。
干扰分析:检测并解决可能的同频干扰或邻频干扰问题。
性能优化:根据测试结果调整系统参数,如功率分配、天线方向等,以优化网络性能。
五、运维与管理
监控系统部署:建立远程监控与故障报警机制,实时监测系统运行状态。
定期维护:制定维护计划,包括设备检查、清洁、软件升级等,确保长期稳定运行。
用户反馈收集:通过用户反馈持续评估系统性能,及时调整优化策略。
