公司新闻

馈线施工注意事项

发布时间:2024-08-15 作者:成都大唐线缆有限公司

1 施工准备

审核设计文件和图纸;根据设计文件、图纸和相关施工技术规范,编报物资申请计划;编制施工作业指导书; 技术交底;检查施工工具及器材是否能满足施工要求,其安全性能是否合格。

1 室内分布系统


2 一般要求

(1) 馈线在敷设安装中,应根据敷设地段的环境条件,在保证馈线不受损伤的原则下,因地制宜地采用人工或机械敷设。

(2) 施工方式:人工布放;

(3) 馈线弯曲半径:馈线在敷设过程中应不小于线缆外径的10倍;

(4) 张力:馈线在布放中,速度要均匀且不宜过快,勿使馈线张力超过允许值;

(5) 馈线布放时必须在缆盘上方放出,并保持松弛弧形;

(6) 施工过程中必须对馈线严加保护,布放时不得在地面上拖拉馈线。严禁车轧、人踩、重物冲砸,严防铲伤、划伤、扭折、背扣等人为损伤;

(7) 施工中必须进行严密有效的指挥并配备方便可靠的通信联络工具切实保证施工质量和施工安全;

(8) 施工中应严格遵守操作规程,加强对施工人员的思想教育和严格管理,确保馈线的外护套完整性;

(9) 除本节明确规定的安装要求外,馈线的其他敷设安装工作应严格执行部颁规范及建设单位相关规范。

2 馈线


3 馈线平面布线要求

1. 馈线必须按照设计文件(方案)的要求进行布放,如有更改须做好变更记录,走线应该牢固、美观、不得有交叉、扭曲、裂损等现象;

2.当跳线或馈线需要弯曲布放时, 弯曲角保持圆滑, 最小弯曲半径应符合下表术指标要求;

产品名称

最小重复弯曲半径

最小单次弯曲半径

1/4” 超柔馈线

25mm

12mm

1/2” 超柔馈线

80mm

40mm

1/4”馈线

80mm

45mm

3/8”馈线

100mm

55mm

1/2”馈线

125mm

80mm

7/8”馈线

250mm

140mm

5/4”馈线

380mm

200mm

13/8”馈线

500mm

280mm

3.馈线尽量避免与强电高压管道和消防管道一起布放走线,确保无强电、强磁的干扰;

4.馈线尽量在天花吊顶中布放, 并用扎带进行牢固固定, 扎带多余必须去除, 但必须注意不得将馈线绑扎在消防管道和风管上。 与设备相连的跳线或馈线应用线码或馈线夹按有关规定进行牢固固定, 并保证此部分馈线或跳线走线美观;吊顶上布放馈线必须采用 PVC 管或金属软件保护, 转弯处可用波纹管或金属软管保护, 连接处必须用胶布捆扎处理。

5.吊顶内馈线的固定间距应参照有关规定, 一般固定点之间的间距不得大于2m,不得出现电缆掉落在吊顶面的现象;

6.馈线的连接头都必须牢固安装,接触良好,一般应采用电工用绝缘胶布做好防水密封处理,室外部分必须采用专用防水胶布或硅胶做好严格的防水密封处理;

7.对于不在机房和天花吊顶内布放的馈线,应套用阻燃 PVC 管,管径根据馈线直径寸选取,要求所有走线管布放整齐、美观,横平竖直,其转弯处要使用转接弯头或波纹软管连接;

8.走线管应尽量靠墙布放,并用线码或管卡进行牢固固定(如遇到转弯处,应在转弯两侧加线码或管卡固定),固定间距如下:

馈线水平走线时

<1/2” 线径馈线

1/2”线径馈线

1

1.5

9.走线不能有交叉和空中飞线的现象;

10.若走线管无法靠墙布放(如地下停车场),馈线走线管一般要求独立布线,可另加拉攀线用吊挂固定, 也可与其他线管一起走线,可另用扎带与其他线管固定;

11.馈线进出口的墙孔应用防水、 阻燃的材料进行密封;

12. 如无特殊要求的,一般馈线两头必须用透明胶带牢固固定专用标签,根据设计文件的标识注明电缆的走向,且标签尽量贴在电缆正面容易看见的地方,做到字迹清晰,无脱落,无明显褶皱现象;

3 施工现场


4 馈线竖向布线要求

1.馈线必须按照设计文件(方案)的要求进行布放,如有更改须做变更记录,走线应牢固、美观,不得有交叉、扭曲、裂损等现象;

2. 馈线竖向布放预留不得过长;

3. 馈线必须在弱电井道内布放,尽量避免与强电高压管和消防管道在同一井道内布放走线,严禁占用风管及给排水管道的井道,弱电井道内布放的馈线必须加套阻燃 PVC 管;

4.竖向馈线可在未满的弱电线槽内布放,但必须征得业主的同意, 馈线进出线槽的预留孔必须采用开孔器在线槽两侧或背面适当位置开取;

5. 弱电线槽内有固定横档的可用扎带或电线固定馈线,无固定可在线槽背面适当位置钻孔用扎带或电线固定馈线, 本次工程馈线尽可能绑扎在一起但绝对不允许将馈线绑扎在其他工程的线缆上, 竖向固定间距如下:

馈线垂直走线时

<1/2” 线径馈线

1/2”   线径馈线

0.8

1.0

6. 弱电井道内无线槽的竖向布线必须全程加套阻燃 PVC 管,套管方式与平面布线类似;但隔一段距离,线缆需直接用线卡固定在墙上,不能全程只固定 PVC 管,以免线缆自重下垂。

7.竖向布线粘贴标签要求与平面布线相同。

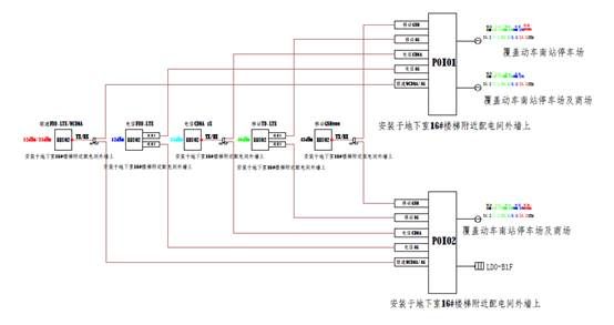
4 平层分布系统线缆及器件


5 无源器件的安装要求

1.功分器、耦合器、合路器等器件必须按照设计文件(方案)的要求进行连接固定,如有更改须做好变更记录,器件不得装反装错,器件外观无损;

2. 器件与电缆接头连接时,接头螺丝不宜旋得太紧,以防接头撞针接触到屏蔽层及撞针损坏,也不宜旋的太松,以防脱落;

3. 吊顶内的器件在安装完毕后必须用扎带或电线与支架或钓钩牢固连接, 器件严禁绑扎在管道上, 线槽内固定器件方式可与电缆相同,钻孔后用扎带或电线绑扎,器件不允许外露;

4. 器件固定位置要便于安装、检查、维护和散热,尽可能固定在墙上,防止强电、强磁或强腐蚀的干扰;

5. 器件安装一般正面朝外,标签粘贴要美观,字迹要清晰。

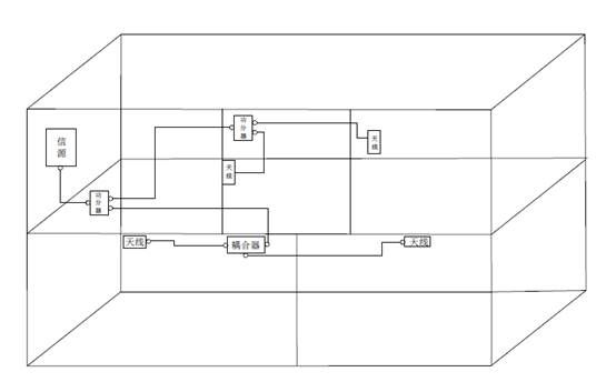
5 分布系统系统图


请升级浏览器版本

你正在使用旧版本浏览器。请升级浏览器以获得更好的体验。